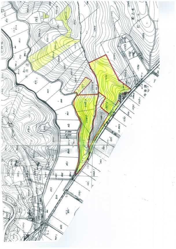
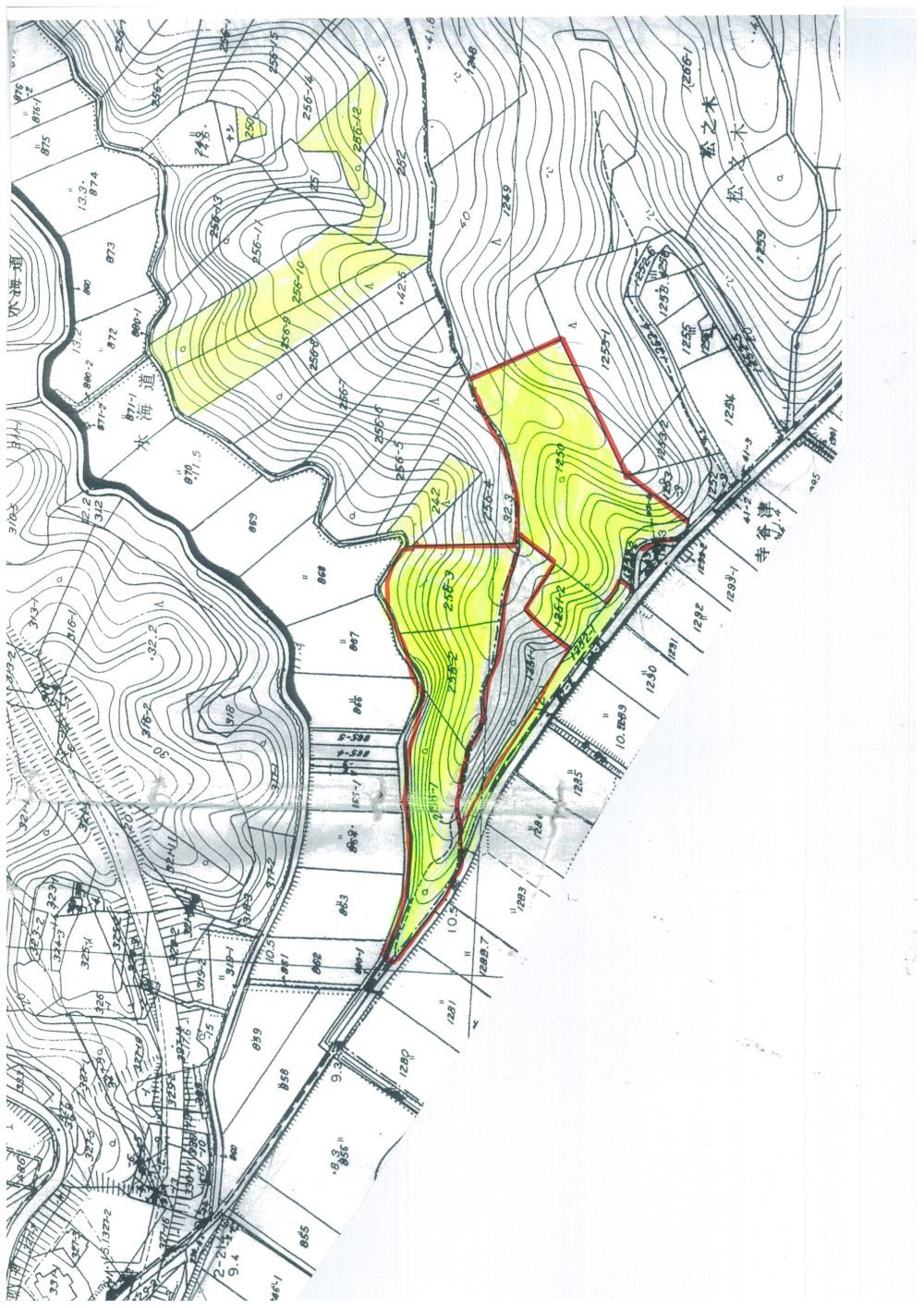
売地(成田市成毛・小泉)


大きな地図で見る

一覧に戻る ホームへ戻る